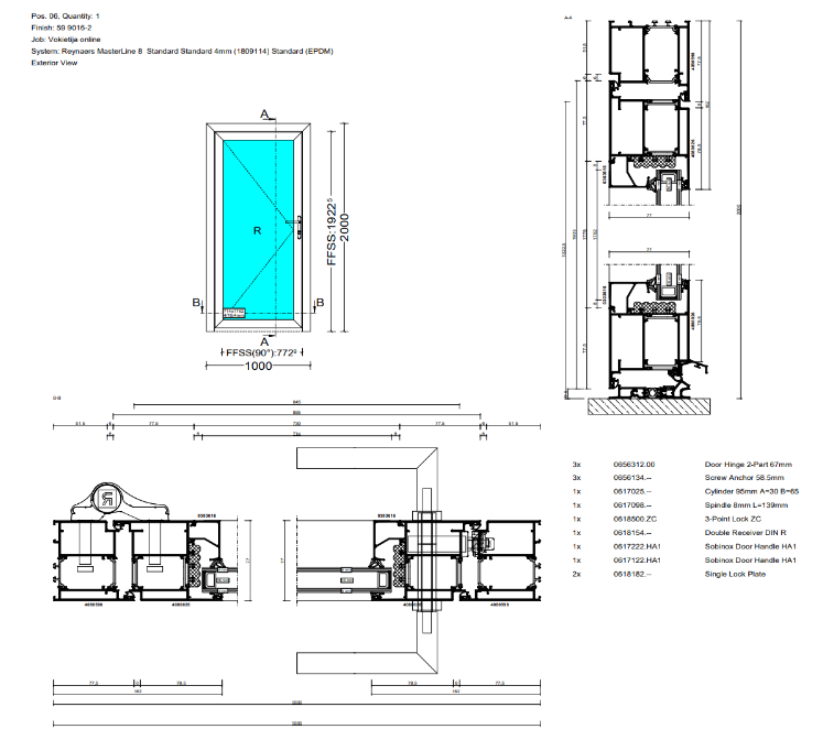
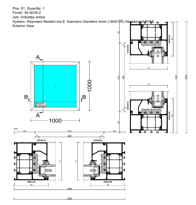
Wir stellen Ihnen verschiedene Detailzeichnungen des Reynaers ML8 Profils zur Verfügung, damit Sie einen umfassenden Einblick in Aufbau, Technik und Design erhalten.
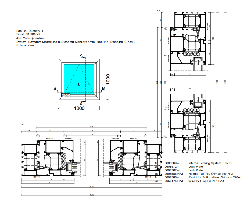
Reynaers ML8 Dreh-Kipp fenster
Jetz konfigurierenBeratungsterminWir stellen Ihnen verschiedene Detailzeichnungen des Reynaers ML8 Profils zur Verfügung, damit Sie einen umfassenden Einblick in Aufbau, Technik und Design erhalten.
Reynaers ML8 Dreh-Kipp fenster
Jetz konfigurierenBeratungstermin