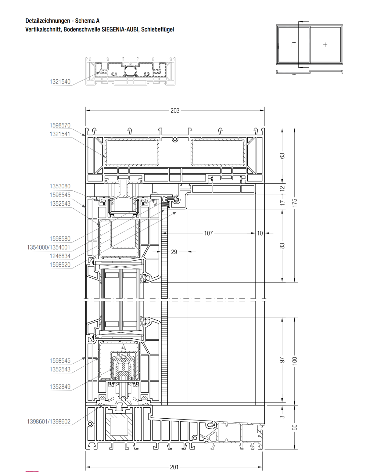
Wir stellen Ihnen verschiedene Detailzeichnungen des REHAU SYNEGO 80 MD Profilsystems zur Verfügung, damit Sie einen umfassenden Einblick in Konstruktion, Technik und Design erhalten.
Hier können Sie die Detailzeichnungen ganz einfach herunterladen und Ihr Projekt optimal planen und vorbereiten.
Download hier die Detailzeichnungen des REHAU SYNEGO 80 MD Profilsystems.
REHAU SYNEGO 80 HST Schiebeflügel
REHAU SYNEGO 80 HST Festflügel
Jetz konfigurierenBeratungstermin